Page suivante
Page précédente
Annecy (74000)

Appartement 3 pièce(s) 2 chambre(s) 85 m²

1
1
Balcon
585 000 €
Réf PAVAP30000107

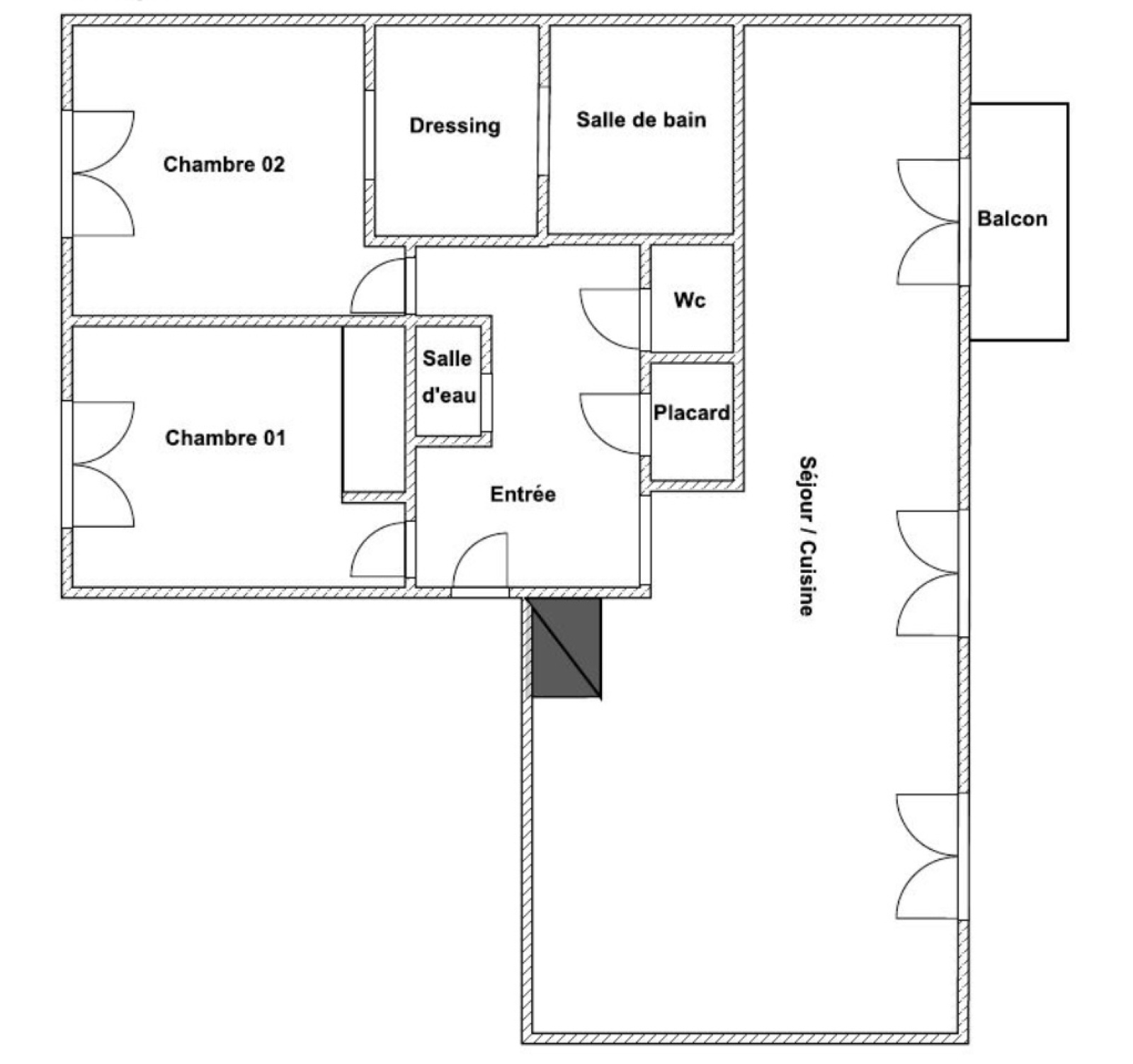
Posez vos valises dans ce superbe 3 pièces (possibilité 4 pièces) de 85 m² entièrement refait, niché au 1er étage d’un immeuble de 1955.

Traversant, lumineux, élégant et idéalement agencé, il offre des prestations haut de gamme dans un cadre recherché.


Ses atouts :

. Spacieuse pièce de vie de 45 m² avec cuisine ouverte donnant sur un balcon sans vis à vis direct

. Suite parentale sur cour avec dressing et salle de bains design

. 2e chambre sur cour, salle d’eau et WC séparés

. Possibilité de créer une 3ème chambre dans le prolongement du salon

. Parquet en chêne

. Chauffage individuel électrique, climatisation réversible

. Pas de vis à vis sur la pièce de vie

. Balcon depuis la cuisine

Garage à vélos sécurisé dans l'immeuble + grande cave.

Pas de garage, mais possibilité de souscrire un abonnement résident (max. 17 euros par mois) qui permet de se garer dans la rue, dans laquelle il y a tout le temps des places disponibles.


Emplacement privilégié Au cœur du Triangle d’Or, à deux pas du lac et des commodités.

-> DPE : D

Contactez-nous dès maintenant. Honoraires à la charge du vendeur.

Infos risques : georisques.gouv.fr

Bilan énergétique

Diagnostics énergetiques
A propos de ce bien Caractéristiques de ce bien
  • Surface 85 m²
  • 2 chambre(s)
  • 1 salle(s) de bain
  • 1 salle(s) d'eau
  • construit en 1955
  • Chauffage individuel : convecteur (electrique)
  • 1er étage
  • 4 étage(s)
  • cave
  • balcon
  • quartier triangle d'or

Composition

Composition de ce bien

Rez-de-chaussée

  • entrée 3.47 m²
  • cuisine 45.09 m²
  • salle d'eau 1.55 m²
  • chambre 10.66 m²
  • WC 0.93 m²
  • chambre 19.04 m²
  • balcon 2.75 m²
  • cave 7.10 m²
  • Dégagement 4.28 m²

Info copro

Copropriété
  • Copropriété Oui
  • Nombre de lots 11
  • Quote part annuelle des charges 1 352 €

Financier

Informations financières
Prix de vente 585 000 € Les honoraires d'agence seront intégralement à la charge du vendeur
Charges 112,66 €
Taxe foncière annuelle 1 480 €

Autour du bien

Découvrez le quartier

Simulation

Calcul des mensualités
* Champs obligatoires
Studio Ymô Agence